Новостройки СПб

Ваш эксперт Дмитрий Чирков

Красносельский р-н ул Тамбасова

ЖК Кинопарк

Дом у парка

от 29,42 м2

площадь

3 кв. 2027

завершение

от 8,2 млн

стоимость

«Кинопарк» — современный жилой комплекс, в котором главную роль играете Вы! Здесь возможен любой желанный сценарий жизни. Продуманные планировки, закрытые уютные дворы, развитая инфраструктура квартала — всё это обеспечит высокий уровень комфорта и будет вдохновлять на новые свершения.

Жилой комплекс у парка «Новознаменка» возводится на бывшей территории «Ленфильма». Тема кино найдет отражение в отделке мест общего пользования и благоустройстве территории, сформирует уникальную атмосферу квартала. Квартира в ЖК «Кинопарк» будет для Вас не только комфортным жильем, но и источником вдохновения, и поводом для гордости!

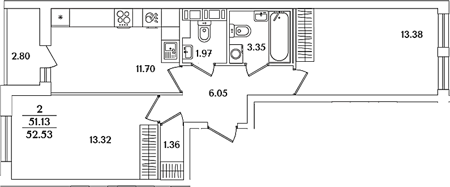
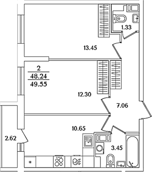
ТИПОВЫЕ ПЛАНИРОВКИ ОБЪЕКТОВ

1 комнатная

Площадь от 29.42 м2

Стоимость от 8.116.189 руб

Пожалуйста укажите телефон
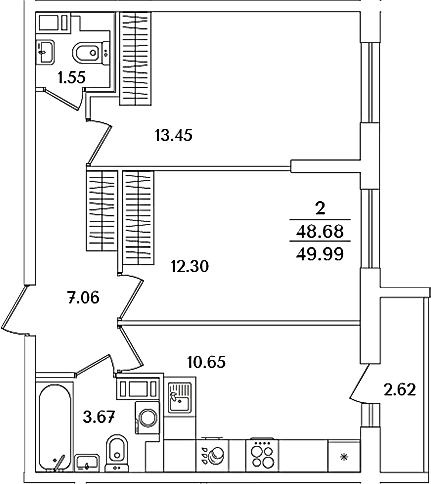
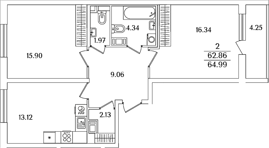
2 - комнатные

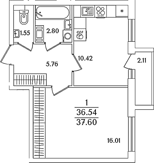
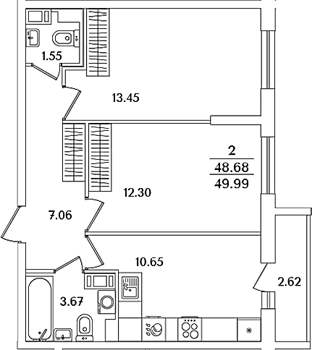
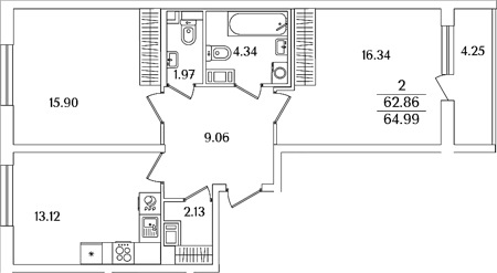
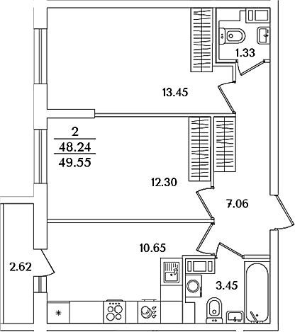
Площадь от 48.81 м2

Стоимость от 12.694.030 руб

Пожалуйста укажите телефон
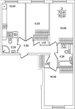
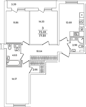
3 - комнатные

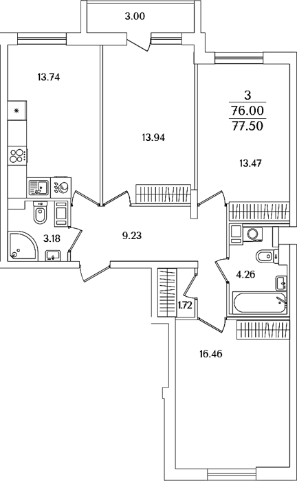
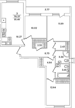
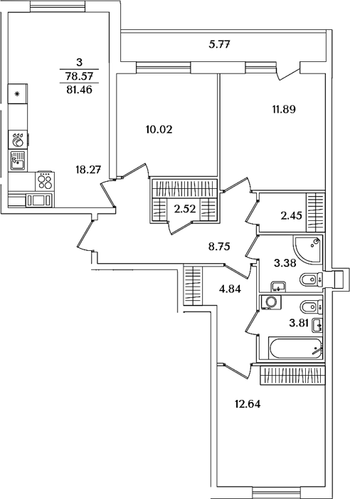
Площадь от 72.61 м2

Стоимость от 18.291.156 руб

Пожалуйста укажите телефон

ЖК Кинопарк ЭТО

Красносельский район имеет выход к южному берегу Финского залива, здесь много различных водоемов — парковые пруды, реки (Ивановка, Сосновка, Новая) и Дудергофский канал. Ввиду большого количества зелени и близости к воде состояние воздуха оценивается как благоприятное. Комплекс окружают такие парки как: Южно-Приморский, Новознаменка, Полежаевский, Александрино, Сосновая Поляна; а также Нижне-Ивановский Верхне-Ивановский скверы.

Фасады домов ЖК «Кинопарк» будут выполнены в неоклассическом стиле – из керамогранита теплых кофейных и серых оттенков. За счет небольшой этажности проект органично вписывается в окружающую застройку. Контрастные элементы, вертикали витражей, остекление балконов и лоджий, а также чередование темного и светлого решения отделки задают ритмический рисунок фасада, делают его выразительным и динамичным. Архитектурные арки высотой в 3 этажа на северном и южном фасадах домов придают комплексу уникальный вид.

В жилом комплексе предусмотрен авторский дизайн входных групп и мест общего пользования. В концепции интерьеров подчеркивается взаимосвязь жилого комплекса с историческим контекстом участка застройки, принадлежавшего киностудии «Ленфильм».

Территория комплекса, как большая съемочная площадка, где снимаются удивительные фильмы. Для создания атмосферы киноплощадки и погружения в атмосферу кино задействованы различные элементы благоустройства. Например, уличные светильники по форме напоминающие прожектора или «тропа приключений», увлекающая в мир приключенческого кино.


ОНЛАЙН КОНСУЛЬТАЦИЯ

получите больше информации о проекте
и задайте свои вопросы

НЕ НАШЛИ ПОДХОДЯЩЕЕ?

Укажите параметры квартиры и мы подберем варианты в течение дня бесплатно

Пожалуйста укажите телефон
Написать в мессенджер